都島の1DK賃貸マンション!|ピタットハウス塚本店

PC
TOPページ
賃貸物件検索
大阪市都島区の賃貸情報一覧
サンライズ都島 都島の1DK賃貸マンション


※このページの情報は広告情報ではありません。過去から現在までピタットハウス塚本店のホームぺージに掲載されていた物件情報を元に生成した参考情報です。

物件概要

交通機関 Osaka Metro谷町線 都島駅 徒歩3分
JR大阪環状線 桜ノ宮 徒歩9分
JR大阪環状線 天満 徒歩19分
住所 大阪府大阪市都島区都島本通1丁目
種別 / 構造 マンション / RC造(鉄筋コンクリート造)
築年数 2022年3月 建物階建 8階 間取り一例 1DK
設備・条件
の一例
給湯 / バストイレ別 / シャワー / 洗面所独立 / シャワー付洗面台 / 温水洗浄便座 / 洗面化粧台 / 角部屋 / バルコニー / 南向き / フローリング / エアコン / クロゼット / シューズボックス / 収納スペース / TVインターホン / オートロック / エレベーター / 宅配ボックス / ネット使用料不要 / LAN / 2口コンロ /  外壁タイル張り /  室内洗濯機置き場 / 

学区情報

小学校区
()
中学校区
()
※各種情報と差異がある場合は現況優先となります
※物件情報の学区情報について
当サイト物件情報に記載されております通学区域(学区)情報は、国土数値情報ダウンロードサービスが提供する小学校区データ【2021年度】及び中学校区データ【2021年度】を元に加工したものですので、記載情報が現在の学区域と異なる場合がございます。国土数値情報ダウンロードサービスのWEBサイト上で記述通り、データは必ずしも正確とは言えません。また、通学区域(学区)は毎年見直しの対象となりますので、そちらを踏まえ学区情報は参考としてご活用下さい。

こちらの物件の空室状況

間取図 部屋番号 賃料
共益費/管理費
敷金
礼金
間取り
専有面積
お気に入り 物件詳細
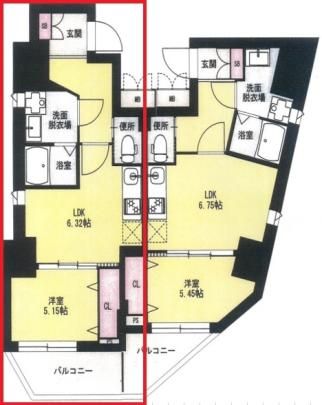
間取り画像
301.
8.8万円
9,000円 -
0ヶ月
0ヶ月
1DK
33.28m2
お気に入り 詳細を見る
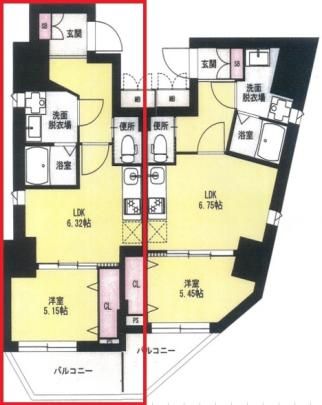
間取り画像
401.
8.8万円
9,000円 -
0ヶ月
0ヶ月
1DK
33.28m2
お気に入り 詳細を見る

この物件に似た物件をチェック!


閲覧した物件の履歴

閲覧した物件の一覧を見る

最近検索した条件一覧


ホームページを見てと伝えてください
ピタットハウス塚本店
〒532-0026
大阪市淀川区塚本2丁目23番地11号
TEL : 06-6309-5159
お問合わせNO:BT101252201

空室情報の確認や詳細を知りたい方
お問合せはお気軽にお問合せください!


▲ページのTOPへ戻る