-
新築マンション サンライズ都島 募集開始しました。2022-02-04
皆さま こんにちは!
営業担当 大矢 です。
大阪メトロ谷町線「都島」駅 より 徒歩3分
新築マンションの募集のホットな情報です。
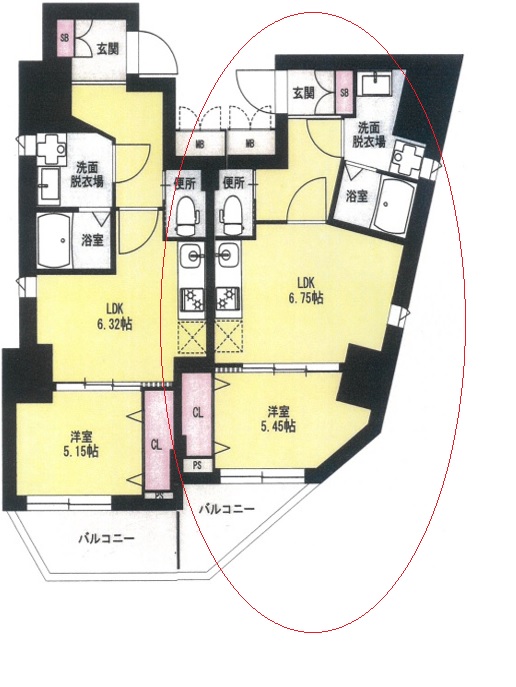
【物件名:サンライズ都島 総戸数 14戸】

住所:大阪市都島区都島本通1丁目

Aタイプ 33,28㎡

Bタイプ 33,60㎡
2022年3月25日に入居開始予定です。
室内は2階のお部屋がモデルルームとなっております。







コロナ禍で大変な時期ですが、
これからも素敵な物件を皆様にお届けしていきます。
担当 大矢
☆随時更新中 ピタットハウス塚本店のホームページ☆
ページ作成日 2022-02-04
月別
- 2026年05月(0)
- 2026年04月(0)
- 2026年03月(0)
- 2026年02月(0)
- 2026年01月(0)
- 2025年12月(0)
- 2025年11月(0)
- 2025年10月(0)
- 2025年09月(0)
- 2025年08月(0)
- もっとみる
カレンダー
| << | 2026年5月 | |||||
|---|---|---|---|---|---|---|
| 日 | 月 | 火 | 水 | 木 | 金 | 土 |
| 1 | 2 | |||||
| 3 | 4 | 5 | 6 | 7 | 8 | 9 |
| 10 | 11 | 12 | 13 | 14 | 15 | 16 |
| 17 | 18 | 19 | 20 | 21 | 22 | 23 |
| 24 | 25 | 26 | 27 | 28 | 29 | 30 |
| 31 | ||||||




